產品詳情

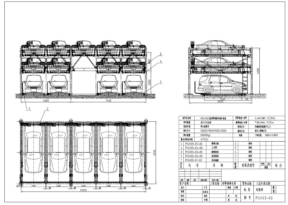
三層升降橫移立體設備總圖
車庫運行圖示服務熱線:13600311671
產品介紹服務熱線:13600311671
一、升降橫移式立體停車庫運行原理
升降橫移式立體停車庫的出入口在地面層,最高層的載車板只能做升降動作,地面層的載車板只能做橫移動作;中間層載車板既可做升降動作又可做橫移動作。中間層均設有空位,車臺板通過橫移動作變換位置,從而橫移出空位,而上層的汽車做下降動作,從而取出汽車,地面層汽車無須運動便可直接開出。
二、升降橫移式立體停車庫主要特點
1、可設置2-5層,可以創造更多層停車位,空間利用率高
2、直接于地面架設,布置簡單,施工周期短。
3、采用電機加鏈條或鋼絲繩驅動,存取車速度快。
4、安全系數大,系統具有防墜落裝置、緊急停止按鈕、超長、超寬、超高光電檢測。
5、結構簡單,后期維修保養費用低。
聯系高達

廣東高達重工機械實業股份有限公司
公司電話:18676501116
公司傳真:0757-88611999
公司郵箱:gdgaoda@126.com
公司地址:廣東省佛山市高明區荷城街道蓬山路22號
郵政編碼:528500
本文關鍵字:
廣東塔吊,塔式起重機,機械式立體車庫,港口起重機,碼頭裝卸吊機
采購:高達立體車庫設備
*
表示必填

